Get an approximate budget for your kitchen design by sharing your space details.

Expert advice: How to read a floor plan

  • Best Interior Design for Home
Sep 24, 2022
Floor plan ideas for your interior designing - Beautiful Homes

Is it difficult to read a floor plan? Not if you know how to interpret the key and can understand what you’re looking at – with our expert advice, reading your floor plan will be no problem!  

Are you currently in a situation where you're staring at your new house plans and just can’t seem to figure out how to read them or even what you’re looking at? Given the amount of information that’s contained within house floor plans it’s understandable to be confused! But, one comfort is that whether it’s a 1 bhk house plan or the blueprints for a large bungalow, most floor plans will tell you the same information in the same way; understanding the key elements and symbols used is your best bet when decoding these 2D drafts.

So, once you know how to read your first home plan design, no floor plan will ever be a mystery again!

 

 

What Exactly are Floor Plans?

A floor plan is one part of the larger construction or site plan that every building has; usually used during an architecture or building engineering phase, it gives you a cross-sectional view of your home while it’s still being planned or built. These house floor plans or blueprints, provide a 2-dimensional reference (mostly as a top view) of the interior of a building. Drawn to scale, they help you to understand the house layout, allowing you to make necessary civil changes, figure out traffic flow within the space, identify air and light flow in various rooms, and even plan out your interiors and furniture placement; if you understand your house plan, design decisions are often a lot easier.

 

 

What can Floor Plans Tell you?

With your home plan, design experts can figure out the look and feel of your rooms in terms of the natural light available and the flow of one room to the next. Making your house plan the foundation on which you layer lighting plans, floor and counter finishes and other core elements, will help create a cohesive interior design scheme. A comprehensive understanding of the house plan design will also give you an idea of sizes and proportions and the placement of architectural elements like stairways and mezzanine floors, allowing you to maximise and efficiently use the space available.

What Specific Details will you Get from your House Floor Plan?

Being able to read your new house plans gives you the opportunity  to plan structural and decorative embellishments within your home, while it is still in the construction process. Your floor plan design can give you a better idea of what your finished home will look like; from the allocated square footage of every room (as well as size and proportion of each space), to placement of inbuilt features like kitchen counters and bathroom plumbing. Plus, your architectural house plan will give you insight into how your rooms flow into each other, the layout and location of interior and exterior walls, stairway size and placement, and the way your doors will open – which allows you to plan around the swing space they would require.

Specific floor plans for your living room interior design - Beautiful Homes
Raw floor plan ideas for your home interiors - Beautiful Homes

What can you Do After Reading your Floor Plans?

Key to making sure your interiors both express your individual design sense and look cohesive, home plans will help you choose furniture, lighting placement and colour palettes that suit the space. Your floor plan design will give you the information you need for selecting furniture sizes and placement, as well as overall space planning in terms of rugs, pathways, décor and more. What is more, it will inform your house plan design needs by clearly indicating the ideal type of wall colours and lighting fixtures based on the ambient natural light that the room enjoys. 

Can you Use Floor Plans to Determine Vastu?

A common question for an Indian house plan is if the rooms and placement of elements are Vastu compliant. Your floor plan will indicate the orientation of your new home, giving you a better idea of which rooms and entrances fall in the North, South, East and West quadrants of your space. With an apartment floor plan you might discover that the unchangeable architectural requirements, like plumbing and wiring, are not ideally placed. Understanding your floor plan and the home’s orientation will help you to adjust the areas that can be changed and ameliorate any issues for a more auspicious Vastu house plan.

Floor plans as per vastu for your home interiors - Beautiful Homes

Understanding Your House Floor Plan:

Your floor plan gives you an outline of each room within your home. A house floor plan design will always reflect the original dimensions of the building, and will be drawn to scale. One of the main purposes of a home plan drawing is to correctly identify, demarcate and mention the dimensions of every room. While most home floor design plans merely show the length and width of the room, a few will indicate the entire square footage or area of each space.
 

Quick Note : The most commonly used units of measurement in blueprints are feet and inches – this is the standard, unless another unit is specifically mentioned.

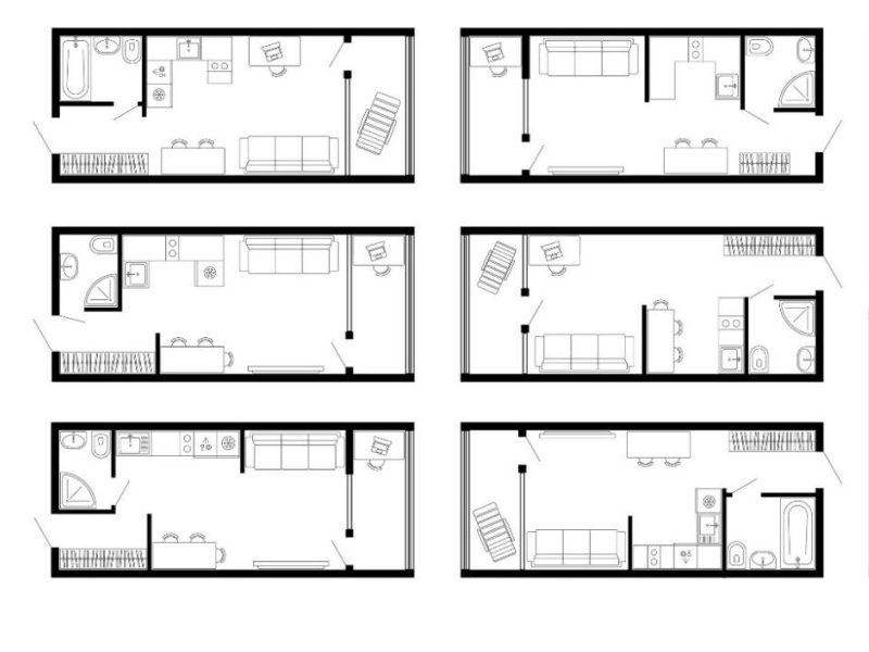
Various symbols used in making floor plans for your home - Beautiful Homes

Common Symbols Used in Floor Plans

When it comes to construction drawings of your house floor plan, design concepts and features are indicated through symbols. These symbols help to visualise the layout of the space more effectively. The symbols used in home plans are standardised so that anyone reading the floor plan would be able to interpret and understand it.

 

So remember, if you’re trying to read the blueprints of your home, floor design plans use the following common symbols:

  • Walls :

    Construction drawings show both exterior and interior walls. It’s good to remember that for house plan design schematics, exterior walls are usually thicker than interior ones (9in vs 6in), although this may not be very apparent on your floor plans. Walls are indicated on home plans using a set of parallel solid lines, although they are occasionally depicted with patterned effects.

  • Doors :

    If your floor plan design wants to indicate that a door is intended to be placed in a space, there will be a break in the wall. The door itself will be represented by a line that will be at right angles to the wall, as well as an arc to show you which way the door swings. Doors always open towards the wall, and this symbol in your house plan drawing will not only let you know the accurate placement of each door, but also how much space the door takes while swinging open.
  • Windows :

    Again, like with doors, windows are shown on a home design drawing by having a small break in the wall along with thin lines along the width. Occasionally, you might see dotted lines, rather than a gap with lines, to indicate a window in your home or apartment floor plan.

  • Stairs :

    Since there are different styles of stairways, there are also a few ways to show stairs on a house floor design plan; although they will usually appear as a row of rectangles or parallel lines. What will not change, from one home plan drawing to another – regardless or if it’s a spiral staircase, a u-shape or a straight line – is the arrow symbol along the middle of the drawn stairway to indicate which way is going upwards, as this is essential for accurately orienting your stairs within the room.

  • Fixtures :

    While your floor plans will usually not show you the details of either the plumbing or electrical plans, various fixtures may be visible within the drawing to give you an idea of how these will be laid out. Along with lighting fixtures, sinks, showers, a bathtub, stove, or toilets are likely to be drawn on your home floor design (mostly to an approximation of their respective sizes).

  • Kitchen Features :

    As mentioned above, fixtures like the sink and stove/hob will be indicated with easy-to-recognise motifs on your floor plans. Most home design drawing plans also indicate where your kitchen cabinets go, with dotted lines above base cabinets to indicate wall cabinets; to make it more convenient to use your countertops, wall cabinets are typically half the width of base cabinets.

  • Ceiling Height :

    In most cases house floor plans will not show you ceiling height. Houses with multiple levels, an extended ceiling, or mezzanine floors may have an indicator for these dimensions.

How to Read Dimensions on your Floor Plans

As previously stated, a house plan drawing is drafted to scale; the entire plan, including any specific measurements for rooms or special features within the house, will most often be shown in feet. By understanding size and the dimensions of your home plan design, you can maximise the available space. This helps to optimise the design process, since you will have an accurate understanding of the house layout; dimension information is invaluable to experts, as it helps them make critical decisions about the general composition of each room, as well as planning choices when designing movable elements to create an illusion of space.

 

Living room design ideas for your home - Beautiful Homes
Floor plans for an open living & dining room design - Beautiful Homes

How to Tell Direction on your Home Floor Plans & Why it Matters

The compass mark, or an arrow with an N above it, will show you which way is North on your house plan. This symbol is vital to any house plan design as it helps to gain a better understanding of how light will travel through the space, allowing you (and your architect) to optimise its use in structural and design themes. Plus, as mentioned above, if you want a compliant to Vastu house plan, knowing the orientation of your house is very important. If you do not see the compass mark on your floor plans, check your site plan to correctly identify directions.

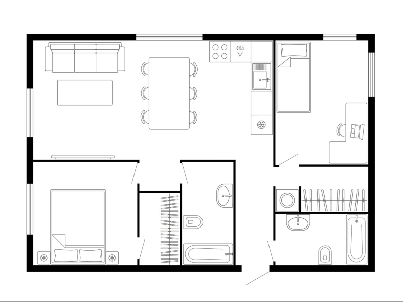
Using a Floor Plan to Place Furniture Within your House Layout

Since floor plans are mostly about building structure, and not about the interior design of home layouts, furniture and other movable fixtures aren’t usually included; they could interfere with clearly showing the complete look and dimensions of the room. But, you can start to figure out your furniture placement on your house plan, as it will clearly mark each room and its features. From the smallest studio apartment to a 2 bhk house plan, having accurate schematics and measurements of the space available to you is sure to help you create the most attractive and efficient interior layout. With to-scale paper cut-outs of old or new furniture, you can try out different arrangements to see what fits and uses your space the best.

Floor plans with furniture for your home design - Beautiful Homes

What can your Floor Plan Design not Tell you?

As with anything, your home floor plans will have their limitations; even if you are well-versed in reading a floor plan, there are a few things which they are unlikely to tell you. The three key areas missing in most home plan design drawings are exterior elevations, heights of windows, doors and ceilings, and details about both interior and exterior finishes; design elements like false walls / ceilings, decorative cladding, etc. which will impact the dimensions of a room may not be featured. To obtain a truly holistic idea of the space, you may have to look further than your home design drawing; check out the sections and elevations, and ask your builder, contractor and architect for any specific details you may be missing.

 

With this, we hope that if you're in the process of building your brand new house, floor plans are no longer a confusing mystery to you, and you’re ready to go forth and plan the interiors of your home! But even if they still seem a little intimidating, all you need to do is reach out to our team and we’ll make sure your home turns out exactly how you’ve always wanted.

 

At Beautiful Homes Service by Asian Paints, what we’re best at is partnering with you to craft the home of your dreams. If you’re eager to get started on creating that perfect haven we’re here for all your design & renovation needs – you can even source the latest décor styles with our curated collection – reach out or find one of our state-of-the-art stores near you.

 

We’re currently available in Mumbai, Ahmedabad, Chennai, Bengaluru, Delhi, Pune or Kolkata, with new locations coming soon!

Untitled design - 1
Built to Resist, Designed to Last,

Choose Weatherseal for Your Home

India’s No.1 Choice for uPVC Doors &Windows!

Get started with Beautiful Homes by Asian Paints

Leave your information and we will call you to book your preferred consultation slot

Please enter your Full Name
Please enter your Pincode
Please enter your Mobile Number +91
Please enter your Email ID

By proceeding, you are authorizing Asian Paints and its suggested contractors to get in touch with you through calls, sms, or e-mail.

tick

Thank You!

We value your interest in Asian Paints - Beautiful Homes. We will get in touch with you to customise your package.

Tell us more and you may qualify for a

special appointment!

Get a special appointment

2/ 4

What’s the condition of your home/space?

Will you be living in your space during the renovation ?

1/ 4

What’s the status of your home possession?

3/ 4

Is your interior design budget over 4 lakhs?

4/ 4

Book next available appointment slots with our experts!

DEC 2023

27 FRI
31 MON
1 TUE

JAN 2024

01 WED
02 THU
03 FRI
05 MON
06 TUE
07 WED
08 THU
arrow

Please Select Date and Day

Something went wrong!

We were unable to receive your details. Please try submitting them again.
To reschedule or cancel, call toll-free
Submit again

Appointment Scheduled!

Thank you for giving an opportunity to Asian Paints Beautiful Homes Service! Our Customer Experience Specialist will get in touch with you soon.

Appointment Date & time

17 Oct 23, 03.00PM - 04.00PM

To reschedule or cancel, call toll-free

Thank You!

Discover your style

Get an instant mood board

Take a quiz and discover your design style that sets you apart

Similar Articles